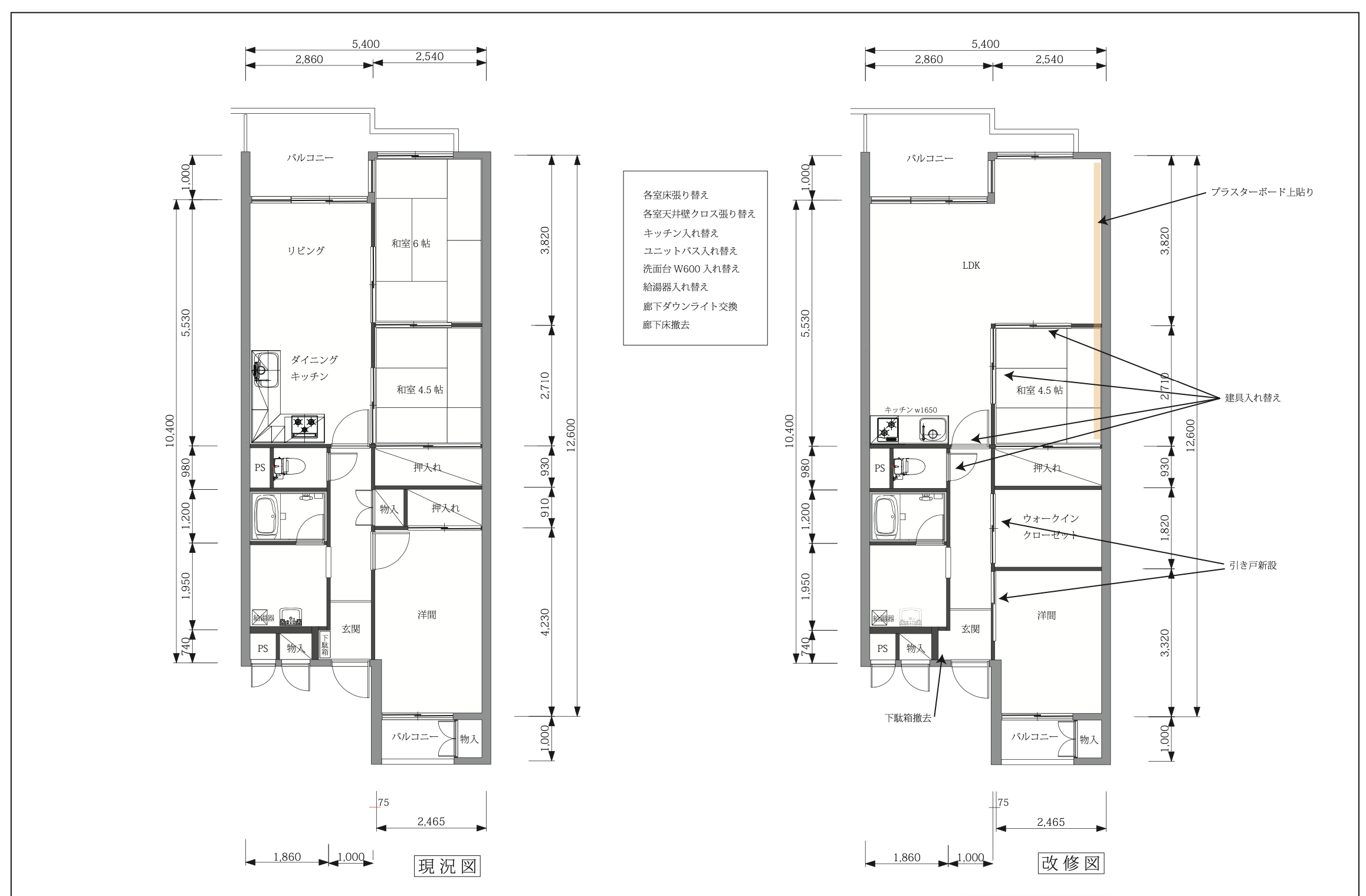
サンプル







10坪までの家屋平面図A3 1枚で10,000円〜 交通費別途 現地内容にもよりますので要相談